5 de agosto de 2013
EL MUNICIPIO DE LA PALOMA CONSTRUIRÁ LA SEDE PARA EL NUEVO CAIF DE BARRIO PARQUE

Es por un acuerdo alcanzado entre el Municipio y el INAU. Además, en el mismo predio, levantará la sede del comedor municipal que hoy atiende a 70 personas por día. El Alcalde Alcides Perdomo explicó los detalles de la obra en una nota exclusiva con La Paloma Hoy.
Por Adriana Pugliese / [email protected] // El INAU (INSTITUTODEL NIÑO Y ADOLESCENTE DEL URUGUAY) tenía programado hacer hasta el año 2015, una cantidad determinada de centros CAIF en todo el país, entre los que figuraba el de Barrio Parque de La paloma. Luego, por razones presupuestarias, el instituto tuvo que reducir la cantidad de centros a crear y con el recorte, quedó afuera el que estaba previsto para barrio Parque.
Ante esta situación, el Municipio de La Paloma, decidió intervenir.
Hace más de diez años, está presente la idea de construir un centro CAIF en la zona de Barrio Parque, que sirva para auxiliar al que ya funciona en el centro del balneario, y donde cada año crecen las listas de los niños de entre 2 y 4 años que esperan ingresar.
Los centros CAIF (Centro de Atención a la Infancia y Familia), desarrollan una propuesta de atención de calidad, que apunta a la integración y protección de la primera infancia. Los centros son guarderías que promueven el desarrollo integral y el fortalecimiento de los niños a través de una propuesta pedagógica de excelencia que brinda, a la vez, un programa alimentario nutricional, otro de promoción y cuidado de la salud, y otro dirigido al desarrollo de las potencialidades. De allí, la importancia que tiene otro centro de estas características en La Paloma.
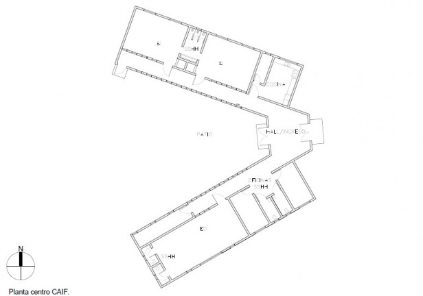
Sede del nuevo CAIF y sede del comedor municipal
Según cuenta el Alcalde Alcides Perdomo “llegamos al siguiente acuerdo con INAU: si nosotros construíamos el edificio ellos abrían el centro CAIF, pero además surgió la idea de agregar a esta obra, la construcción de un comedor comunitario, ya que hoy en día el Municipio alquila casas de familia y no reúnen las condiciones necesarias para dar de comer a las casi 70 personas que día a día concurren en busca de almuerzo y cena que provee el Municipio. Muchos comen en el lugar, sobre todo al mediodía y por la noche la mayoría se lleva la vianda, entonces creemos que vale la pena desde el Municipio hacer el esfuerzo y construirlo.”
El proyecto del Municipio de la Paloma consiste entonces en levantar una sede del Caif para que el INAU desarrolle ahí su funcionamiento y además, construir un espacio para que funcione el comedor diario municipal. Por otra parte, allí habrá un invernáculo que proveerá al comedor de verduras frescas.
La Obra
La obra no va ser ni proyectada ni ejecutada por los técnicos del Ministerio. Por eso toda la responsabilidad del proyecto recae sobre la alcaldía y el responsable de la obra es el arquitecto Manuel Lázaro, quien cuenta que “La obra que se proyecta va a tener unos 300 metros cuadrados techados. La zona del CAIF tendrá 2 salones de Educación Inicial (EI) con sus respectivos servicios higiénicos, y también la cocina con su despensa, 2 oficinas administrativas, los servicios higiénicos generales, el salón de Experiencias Oportunas (EO), también con servicios higiénicos propios, y el depósito general. El comedor municipal, tendrá una cocina completa, una despensa, un gran área de comedor y servicios higiénicos completos”.
En cuanto a técnicas constructivas, la obra será levantada sobre un murete de Modublockarmado, y sobre este se alzarán los bastidores que posteriormente serán revocados con barro y paja. La cubierta será de chapa ondulada y los cielorrasos de madera laminada. Los pavimentos serán de hormigón llaneado.
Para la ejecución de la obra, la primera instancia (las fundaciones y el murete) será realizada con mano de obra enteramente del municipio. Para la etapa de barro y cerramientos en general, se contratará a una persona idónea en ese campo.
El comedor comunitario y su importante función
El comedor municipal que funciona en la ciudad de La Paloma, está destinado a personas de bajos recursos.
El Alcalde Perdomo, reflexiona también acerca de las causas que llevan a que el municipio alimente a casi 70 personas por día “Acá el tema de la pesca artesanal tiene un causal directo sobre la cuestión, porque cuando disminuye la pesca o hay poca, o por el mal tiempo no se puede salir, el pescador muchas veces queda sin recursos. Así, su situación empieza a degradarse y se ve obligado a recurrir al comedor. Después, hay gente que está en esa situación desde hace mucho tiempo, hay familias numerosas que no tiene trabajo estable, entonces todos de una manera u otra, por la falta de trabajo o por la merma en su actividad, se ven obligados a comer allí. Esto es parte de la pobreza que hay que tratar de erradicar”, concluye.
Sobre el proyecto, Perdomo cuenta que “Vamos a tratar de que el comedor funcione en un sistema más de colaboración, que la limpieza, el invernáculo y algunas otras actividades, como lavar los platos y quehaceres diarios, sean llevadas adelante por los mismos usuarios del comedor; también vamos a pedir la colaboración de los vecinos, porque esto va a ser un esfuerzo que hacemos todos para el barrio y por ahora la mano de obra para hacer la cimentación está, pero va a llegar un momento en que se va a necesitar mayor cantidad de mano de obra, entonces vamos a pedir la colaboración de los vecinos. Además, explicó Perdomo, el INAU tiene programas en los que trata de reinsertar a los chicos internados consiguiéndoles trabajo, y estamos en tratativas para ver qué gente podría venir y en qué condiciones, para poder colaborar con la obra.”
Para el Alcalde Perdomo “la comida es lo último que se le debe restringir a la gente. Este invierno, cuando tuvimos la ola de frío, había gente desamparada, a la que además de comida, hubo que darle ropa de abrigo, frazadas, etc.”
Cómo funciona el comedor
Durante el invierno, el comedor municipal funciona los siete días de la semana, proporcionándole a los más necesitados almuerzo y cena. Fuera de la temporada fría, funciona de lunes a sábado. Se estima que provee las dos comidas básicas del día a 70 personas, entre los cuales están los niños que comen de día en la escuela y de noche retiran la vianda para sus casas.
La cantidad de personas que concurren varía según el clima y la época del año. Este verano, fuera de la época escolar, 45 niños concurrían diariamente al comedor comunitario.


